设为J9集团技术加入收藏联系我们
欢迎光临J9集团技术 仪表(上海)有限公司官方网站!您是第1733位访问者

当前位置:产品中心  >  防腐型金属浮子流量计  > 防腐型金属浮子流量计

防腐型金属浮子流量计

防腐型金属浮子流量计
型    号:DQH
品    牌:J9集团技术 仪表
所属分类:防腐型金属浮子流量计
所 在 地:上海
更新日期:2017.04.12 12:20:22
分享到: 4

纯机械式,衬四氟,垂直安装,下进上出型,可以用来测量腐蚀性气体、液体,法兰型安装。

 


防腐型金属浮子流量计

★ 使用介质:所有腐蚀性酸碱盐溶液,要求介质洁净无杂质;所有腐蚀性气体

★ 使用要求:受安装方式限制,仅限于垂直安装、下进上出型,需要提供准确的介质密度

★  优势:纯机械式,壳体内衬四氟,无累计无输出无供电,只显示瞬时流量(智能型需要加价),测量液体精度2.5;测量气体精度2.5,DN10-100

★ 常用型号:DQH-25FA-RP-1.6E-M1
型号注解:防腐型金属浮子流量计,纯机械式,测量介质为氟化氢气体,DN25,表体材质为304不锈钢衬四氟,垂直安装下进上出型,温度低于80度,额定压力1.6mpA,,显示瞬时流量,无累计无输出,法兰型,自配安装法兰等紧固件。

选型样本下载://grg1995.com/xiazai/detail/65

说明书下载://grg1995.com/xiazai/detail/120

 


 

 

防腐型金属浮子流量计性能参数:

准确度等级: 1.5、2.5级

 量程比: 10:1

 工作压力: DN15~50,4 MPa; DN80~100,1.6MPa

 介质温度: 内衬F46流量计0℃~80°C

液体介质粘度:DN15<5mPa·s;DN25~100<5mPa·s

连接方式:法兰连接,法兰采用GB/T9119.8~10标准

总长度: DN15~100 250mm

测量管材质:普通型1Cr18Ni9Ti,耐腐型Cr18Ni12Mo2Ti,316L、316衬F46等

 


 

防腐型金属浮子流量计工作原理:

金属浮子流量计的构造是在一根截面积自下而上逐渐扩大的垂直锥形金属管1内,装有一个能够旋转自如的由金属或其它材质制成的转子2(或称浮子)。被测流体从金属管底部进入,从顶部流出。

             

 

 

       当流体自下而上流过垂直锥形管时,转子受到两个力的作用:一是垂直向上的推动力,它等于流体流经转了与锥形管间的环形截面所产生的压力差;另一是垂直向下的 净重力,它等于转子所受重力减去流体对转子的浮力。当流量加大使压力差大于转子净重力时,转子就上升。当压力差与转子的净重力相等时,转子处于平衡状态, 即停留在一定位置上。在金属管外表面上刻有读数,根据转子的停留位置,即可读出被测流体的流量。

金属浮子流量计是变截面定压差流量计。作用在浮子上下游的压力差为定值,而浮子与锥管间环形截面积随流量而变。浮子在锥形管中的位置高低即反映流量的大小。

 


 

防腐型金属浮子流量计性能优势:

 金属管浮子流量计适用于小口径和低流速介质流量测量;

 工作可靠,维护量小,寿命长;

★   金属管浮子流量计对于直管段要求不高;

 较宽的流量比10:1;

 双行大液晶显示,可选现场瞬时/累计流量显示,可带背光单轴灵敏指示;

 非接触磁耦合传动;

 金属管浮子流量计全金属结构,适于高温、高压和强腐蚀性介质;

 可用于易燃、易爆危险场合;

 可选二线制、电池、交流供电方式;多参数标定功能;

 金属管浮子流量计带有数据恢复,数据备份及掉电保护功能.

 


 

 安装尺寸:

 


 

参考选型:

流量范围对照表:

 

 


 

使用与维修

  安装流量计之前一定要将管道内的焊 渣、杂物清理干净。

 必须垂直于地面安装其倾斜度不得超过2°。否则会影响测量准确度。

 为了确保流量计的测量准确性,应在流量计的进口端增加不少于10DN的直管段,出口端不少于5DN的直管段,测量时调节控制阀必须安装在流量计的下游。

  若被測介质为大的脉动流或两相流,应在流量计的上游安装缓冲器来消除或减弱脉动,保证介质的流动是单相稳定的,同时,建议流量计最好使用阻尼型的。

 若被測介质较脏或含有导磁颗粒时,应在流量计的上游安装过滤器或磁过滤器。

 流量计的安装应能适当支撑管道的振动或减少流量计的轴向负荷,否则应增加固定流量计的支撑。

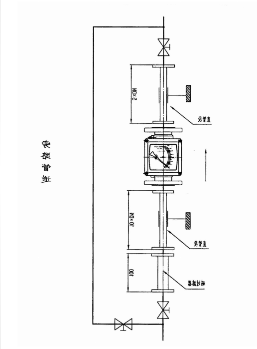
 为了便于流量计的保养维修,磁过滤器的清洗以及用户管路的定期维护保养,建议使用如图所示的旁路管道。

  当流量计用于气体测量时,应保证 管道内的工作压力不少于5倍流量计 的压力损失,使流量计能够稳定正常动作。(图6 安装图)

 

 

 

 对电远传及带报警限位开关的流量计在使用前,打开仪表盖,按接线图示正确接线。对于报警型的旋松限位开关处的螺丝,用户根据需要设定限位报警位置,并旋紧螺丝,复原后使用。

  按仪表指示器中的警示牌,取出运输中防止浮子振动的阻动件,复原后再使用仪表。

  若开启流量计时,由于管道内没有压力或系统还未达到仪表正常使用的工作压力,必须缓慢开启控制阀,直到系统正常,仪表方可使用,否则容易造成指针跳动或浮子的突然撞击而损坏的现象。

 用户使用时,若被測流体的密度与水不同时,或被測气体的参数和工作状态与制造厂家规定不同时应对流量计示值读数进行换算,换算方法见附录。

 

 


 


 

设计选型须知

 根据测量流体是气体或液体。正确选用气体或液体金属管浮子流量计。

  被测流体无腐蚀性选用普通型,有腐蚀性选用防腐型。

 订货时请注明被测介质名称、流量、管道通径及工作压力、温度、密度、粘度等情况。我公司可根据用户提出的密度等进行刻度修正,制作特殊的流量标尺。

 根据被测流体的测量范围、应用场合等选用合适型号的规格品种。如有特殊要求的流量计,请来公司或来函与营销科联系。 

 


 

同系列样品展示:

                                     (垂直安装 纯机械式  法兰型)

                                           (智能型  垂直安装)

                                          (垂直安装 防爆型  智能型)

                                      (水平安装  法兰型  纯机械式)

                                        (大口径  纯机械式  水平安装)

                                 (垂直安装  带触点报警)

 

售后与质保   

供应的所有产品:

所有产品质保2年;

免费提供电话咨询、指导安装调试等服务;

协商上门指导安装、调试等事宜,只收取合理的差旅费用;

量大可以免费上门指导安装、调试;
服务宗旨:不管产品使用多长时间,只要您找到我们,我们都会为您解决所有问题,直到满意为止。相信我们从事流量计行业10多年的实践经验能为你带来满意的服务。

 

 

 

 

关注&咨询
J9集团技术 仪表

QQ咨询
新浪微博
微信公众号
需要帮助